Centro commerciale

Centri commerciali

Vanzaghello – Milano | 2010

Facciata continua e serramenti
Evacuatori di fumo e calore
Frangisole orientabili
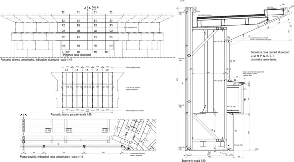
Rivestimenti in alluminio composito
Porte interne e pareti divisorie interne
Bussole ingresso ed automazioni
Balaustre in vetro